Blühende Geschäftsideen: Gewerbeeinheit in Toplage für Gastro & Lieferservice

  • Home
  • /
  • Blühende Geschäftsideen: Gewerbeeinheit in Toplage für Gastro & Lieferservice

10243 Berlin, Restaurant zur Miete

Kontaktdaten

Nicole Rahlke, Nudelmann & Friends Immobilien GmbH

Objektdaten

  • Objekt-ID
    10243PAL60GAS
  • Objekttypen
    Gastgewerbe, Restaurant
  • Adresse
    Palisadenstraße 60
    10243 Berlin
    Berlin
  • Etage
    EG
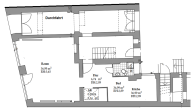
  • Nutzfläche ca.
    85,80 m²
  • Gesamtfläche ca.
    85,80 m²
  • Gastrofläche ca.
    85,80 m²
  • Zimmer
    3
  • Verfügbar ab
    sofort
  • Mieter­provision (gewerblich)
    3,57 Nettokaltmieten inklusive 19 % MwSt.
  • Kaution
    Drei Bruttowarmmieten
  • Kaltmiete
    1.115,40 EUR
  • Nebenkosten
    342,00 EUR
  • Heizkosten
    in der Warmmiete enthalten

Objekt­beschreibung

Beschreibung

Neue Gewerbeeinheit mit Großfenster für Gastronomie oder Lieferservice

Entdecken Sie diese neue, vielseitige Gewerbeeinheit mit exzellenter Lage im Herzen von Berlin zwischen der Karl-Marx-Allee und dem Volkspark Friedrichshain. Das Objekt erstreckt sich über das Erdgeschoss und bietet direkten Zugang von der Straße aus.

Das Gewerbeobjekt verfügt über ein großes Schaufenster, welches sich hervorragend für die Präsentation Ihrer Produkte oder Dienstleistungen eignet. Eine moderne, zweckmäßige Ausstattung garantiert eine ansprechende und funktionelle Umgebung für Ihr Unternehmen.

Bereits integriert ist ein komplett ausgestattetes Bad mit WC und Dusche, sowie eine Teeküche mit EBK. Dies ist vor allem für Kundenbesuche oder Mitarbeiter von großem Vorteil.

Die Einheit bietet diverse Nutzungsmöglichkeiten, einschließlich Gastronomie oder einem Lieferservice-Schalter.

Es gibt ausreichend Platz für Gastraum, Küche oder zusätzlichen Lager- und Abstellraum. Die moderne Fliesenbodenverlegung im gesamten Bereich ist nicht nur ästhetisch, sondern auch leicht zu pflegen und strapazierfähig.

Die zentrale Lage und die exzellenten Einkaufsmöglichkeiten in der Umgebung sind für eine Gastronomie- oder Lieferservice-Nutzung von großem Vorteil.
Die gute Verkehrsanbindung durch die nahegelegene U-Bahn Station Weberwiese erleichtert den Transport sowohl für Mitarbeiter als auch für die Kundschaft.

Entdecken Sie die Vorteile einer zentral gelegenen Einheit in einer lebhaften Gegend von Berlin. Kontaktieren Sie uns noch heute, um dieses attraktive Angebot zu nutzen!

Ausstattung

  • Gewerbe im EG
  • direkter Zugang
  • großes Schaufenster
  • Fliesenboden
  • PVC
  • WC
  • EBK
  • Keller

Lage

Das Haus befindet sich in zentraler Lage, zwischen der Karl-Marx-Allee und dem Volkspark Friedrichshain. Die U-Bahn Station Weberwiese ist gut fußläufig zu erreichen. Gute Einkaufsmöglichkeiten sind in unmittelbarer Nähe.

Direktanfrage

* Pflichtangaben
 SSL-verschlüsselt
Jetzt Immobilie Bewerten!