Großzügige Fläche mit toller Schaufensterfront+2 Eingängen direkt auf der Boxhagener

  • Home
  • /
  • Großzügige Fläche mit toller Schaufensterfront+2 Eingängen direkt auf der Boxhagener

10245 Berlin, Restaurant zur Miete

Kontaktdaten

Andrea Riley, Nudelmann & Friends Immobilien GmbH

Objektdaten

  • Objekt-ID
    10245BOX28 - EG - GASTRO
  • Objekttypen
    Gastgewerbe, Restaurant
  • Adresse
    Boxhagener Str. 28
    10245 Berlin
    (Berlin (Friedrichshain))
    Berlin
  • Etage
    EG
  • Gesamtfläche ca.
    135,59 m²
  • Gastrofläche ca.
    135,59 m²
  • Zustand
    teil-/vollrenoviert
  • Verfügbar ab
    sofort
  • Mieter­provision (gewerblich)
    3,57 Nettokaltmieten inklusive 19 % MwSt.
  • Kaution
    Drei Bruttowarmmieten
  • Kaltmiete
    4.990,00 EUR
  • Nebenkosten
    542,36 EUR
  • Heizkosten
    in der Warmmiete enthalten

Objekt­beschreibung

Beschreibung

Erkunden Sie diese großzügige Gewerbefläche im beliebten "Simon-Dach-Kiez", strategisch gelegen zwischen der Warschauerstraße und dem Ostkreuz.
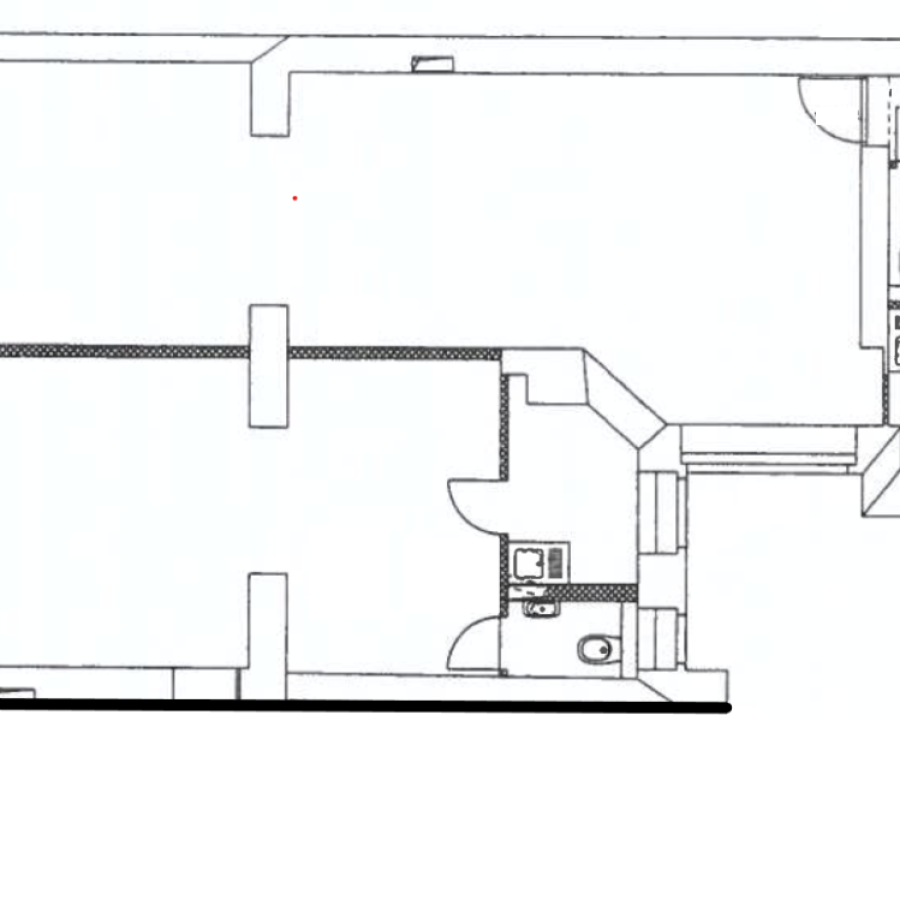
Die Gewerbefläche umfasst etwa 135 m² und bietet somit ausreichend Platz für Ihre Ideen und verschiedenartigsten Aktivitäten. Durch die großzügigen Räume, die nach Ihren Vorstellungen verändert werden können, können Sie die Fläche optimal an Ihre Bedürfnisse anpassen.
Große Schaufenster sorgen für eine freundliche Atmosphäre und eine gute Sichtbarkeit von außen. Des Weiteren verfügt die Fläche über einen Fliesenboden, zwei separate WCs, eine Dusche sowie einen Abstellraum.

Freuen Sie sich auf diese einzigartige Gelegenheit, Ihr Unternehmen im Herzen eines der lebhaftesten und attraktivsten Viertel Berlins zu etablieren.

Ausstattung

Shop im Shop Modell möglich

  • Großzügige Fläche
  • Räume veränderbar
  • Großzügige Schaufenster
  • Fliesenboden
  • Zwei getrennte WC
  • Abstellraum

Lage

Die Gewerbefläche liegt im hippen und beliebten "Simon-Dach-Kiez", gelegen zwischen der Warschauerstraße und Ostkreuz. Der Boxhagenerplatz ist in direkter Nachbarschaft, sodass Sie sich genau im Geschehen befinden. Alles, was das Leben so spannend macht, ist fußläufig erreichbar: viele Bars, Restaurants, Geschäfte, öffentliche Verkehrsmittel, Kitas und Schulen. Die Gewerbefläche umfasst ca. 135m² und bietet somit ausreichend Platz für Ihre Ideen und Aktivitäten.

Direktanfrage

* Pflichtangaben
 SSL-verschlüsselt
Jetzt Immobilie Bewerten!