Atelier, Studio, Ladengeschäft mit viel Potenzial und tollem Schaufenster

  • Home
  • /
  • Atelier, Studio, Ladengeschäft mit viel Potenzial und tollem Schaufenster

10243 Berlin, Ladenlokal zur Miete

Kontaktdaten

Andrea Riley, Nudelmann & Friends Immobilien GmbH

Objektdaten

  • Objekt-ID
    10243PAL60-Laden
  • Objekttypen
    Einzelhandel, Ladenlokal
  • Adresse
    Palisadenstraße 60
    10243 Berlin
    (Berlin (Friedrichshain))
    Berlin
  • Etage
    EG
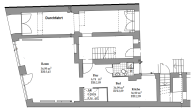
  • Nutzfläche ca.
    85,80 m²
  • Verkaufsfläche ca.
    85,80 m²
  • Zimmer
    3
  • Verfügbar ab
    sofort
  • Mieter­provision (gewerblich)
    3,57 Nettokaltmieten inklusive 19 % MwSt.
  • Kaution
    Drei Bruttowarmmieten
  • Kaltmiete
    1.115,40 EUR
  • Nebenkosten
    342,00 EUR
  • Heizkosten
    in der Warmmiete enthalten
  • Warmmiete
    1.457,40 EUR (Heizkosten enthalten)

Ausstattung / Merkmale

  • ✓ Abstellraum
  • ✓ Gäste-WC
  • ✓ Keller

Objekt­beschreibung

Beschreibung

Das Gewerbeobjekt im Erdgeschoss besticht durch ein großes Schaufenster, das eine optimale Präsentationsfläche für Ihre Produkte oder Dienstleistungen bietet. Der Fliesenboden im gesamten Bereich ist nicht nur ansprechend, sondern auch pflegeleicht und strapazierfähig.

Das Objekt verfügt über ein modernes Bad mit Dusche, was insbesondere für Mitarbeiter oder Kundenbesuche von Vorteil ist. Des Weiteren sind Anschlüsse für eine Teeküche vorhanden, was die Möglichkeit bietet, einfache Mahlzeiten zuzubereiten oder Getränke anzubieten, ohne den Arbeitsfluss zu stören.

Ein zusätzlicher Abstellraum rundet das Angebot ab und bietet ausreichend Platz für Lagerung oder die Unterbringung von Utensilien, die nicht unmittelbar im Verkaufsraum benötigt werden.

Das Objekt eignet sich ideal für vielfältige gewerbliche Nutzungsmöglichkeiten und bietet durch seine zentrale Lage und die vorhandenen Ausstattungsmerkmale optimale Voraussetzungen für Ihren geschäftlichen Erfolg.

Ausstattung

  • Gewerbe im EG
  • direkter Zugang
  • großes Schaufenster
  • Fliesenboden
  • PVC
  • WC
  • EBK
  • Keller

KEINE DUSCHE

Lage

Das Haus befindet sich in zentraler Lage, zwischen der Karl-Marx-Allee und dem Volkspark Friedrichshain. Die U-Bahn-Station Weberwiese ist gut fußläufig zu erreichen. Gute Einkaufsmöglichkeiten sind in unmittelbarer Nähe.

Direktanfrage

* Pflichtangaben
 SSL-verschlüsselt
Jetzt Immobilie Bewerten!