Ihre neue Gewerbefläche über den Dächern vom Kurfürstendamm!

  • Home
  • /
  • Ihre neue Gewerbefläche über den Dächern vom Kurfürstendamm!

10707 Berlin, Bürofläche zur Miete

Kontaktdaten

Tommaso Bucciero, Nudelmann & Friends Immobilien GmbH

Objektdaten

  • Objekt-ID
    10707KUD115/5OG
  • Objekttypen
    Büro/Praxis, Bürofläche
  • Adresse
    Kurfürstendamm 175
    10707 Berlin
    (Berlin (Charlottenburg))
    Berlin
  • Etage
    5
  • Etagen im Haus
    5
  • Bürofläche ca.
    186,13 m²
  • Gesamtfläche ca.
    186,13 m²
  • Zimmer
    5
  • Küche
    Einbauküche
  • Heizungsart
    Zentralheizung
  • Wesentlicher Energieträger
    Gas
  • Zustand
    gepflegt
  • Ausstattung
    Standard
  • Verfügbar ab
    nach Absprache
  • Mieter­provision (gewerblich)
    Drei Nettokaltmieten zzgl. 19 % MwSt.
  • Kaution
    Drei Bruttowarmmieten
  • Kaltmiete
    3.908,73 EUR
  • Nebenkosten
    744,52 EUR
  • Heizkosten
    in der Warmmiete enthalten
  • Warmmiete
    4.653,25 EUR (Heizkosten enthalten)

Ausstattung / Merkmale

  • ✓ Einbauküche
  • ✓ Parkettboden
  • ✓ Personenaufzug

Objekt­beschreibung

Beschreibung

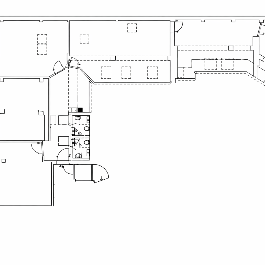
Diese repräsentative Büro – oder Praxisfläche befindet sich direkt auf dem Kurfürstendamm und verfügt über einen hervorragenden Grundriss.
Die Fläche bietet einen offenen, sehr hellen Eingangsbereich. Im weiteren verlauf der Einheit folgen einzelne Büros, teilweise mit Durchgangszimmer. Hier könnten bei Bedarf Zwischenwände gezogen werden.

Ausstattung

  • Aufzug
  • Parkett
  • Hell und Lichtdurchflutet
  • Teeküche
  • getrennte WC's

Lage

Der Kurfürstendamm (umgangssprachlich auch Ku’damm) ist die Hauptverkehrsstraße im Berliner Bezirk Charlottenburg-Wilmersdorf, die vom Rathenauplatz im Ortsteil Grunewald bis zum Breitscheidplatz mit der Kaiser-Wilhelm-Gedächtniskirche im Ortsteil Charlottenburg führt, wo sie in die Tauentzienstraße übergeht. Der Kurfürstendamm ist geprägt von Handel und Gastronomie und gilt als einer der touristischen Anlaufpunkte in der Berliner City-West.

Direktanfrage

* Pflichtangaben
 SSL-verschlüsselt
Jetzt Immobilie Bewerten!